Multisan 2
Événement
Parfaite pour toutes les occasions
La roulotte sanitaire Multisan 2 Événement est la solution idéale pour offrir à vos invités une expérience haut de gamme lors de mariages, réceptions privées ou événements corporatifs. Alliant élégance, confort et modernité, elle se distingue par son design raffiné, son accès pratique et son ambiance soignée. Robuste et parfaitement adaptée à toutes les saisons grâce à ses systèmes intégrés, elle rehausse l’image de votre événement tout en assurant une intimité et un bien-être incomparables.
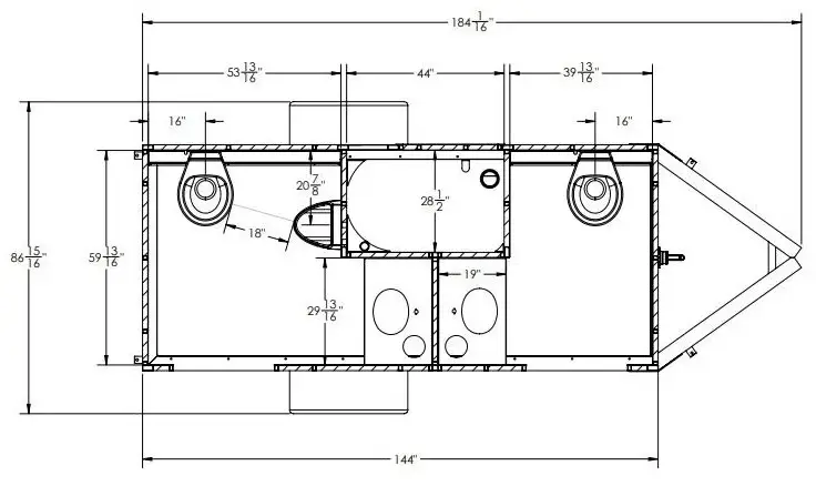
- Deux salles de bains indépendantes avec toilettes en porcelaine, lavabos modernes, urinoir et miroirs.
- Accès facile grâce aux escaliers en aluminium escamotables.
- Confort toutes saisons : climatisation, chauffage et échangeur d’air intégrés.
- Design élégant avec fenêtres lumineuses, éclairage raffiné et revêtement en aluminium robuste.
- Autonomie complète : fonctionne sans raccordement à l’eau ni à l’égout.
2 salles de bain
2 lavabos
Lumières
Système de son
Chauffage
Air climatisé
Approvisionnement
Nos camions de Toilette Prestige sillonnent les routes jour et nuit pour approvisionner les blocs sanitaires ne pouvant être raccordés à l’eau courante et ce, peu importe la quantité d’eau.
Conciergerie
Toutes nos unités sont nettoyées avec soin selon la fréquence requise, inspectées et réparées minutieusement pour répondre aux normes sanitaires les plus exigeantes.
Vidange
Nos camions font la vidange des réservoirs à la fréquence établie. Ceux-ci ont une capacité impressionnante afin d’effectuer le travail rapidement et en un seul passage.
